Úvod
Lokalita
O projektu
Byty
Obchodní prostory
Video a fotogalerie
Kontakty
Úvod
Lokalita
O projektu
Byty
Obchodní prostory
Video a fotogalerie
Kontakty
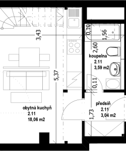
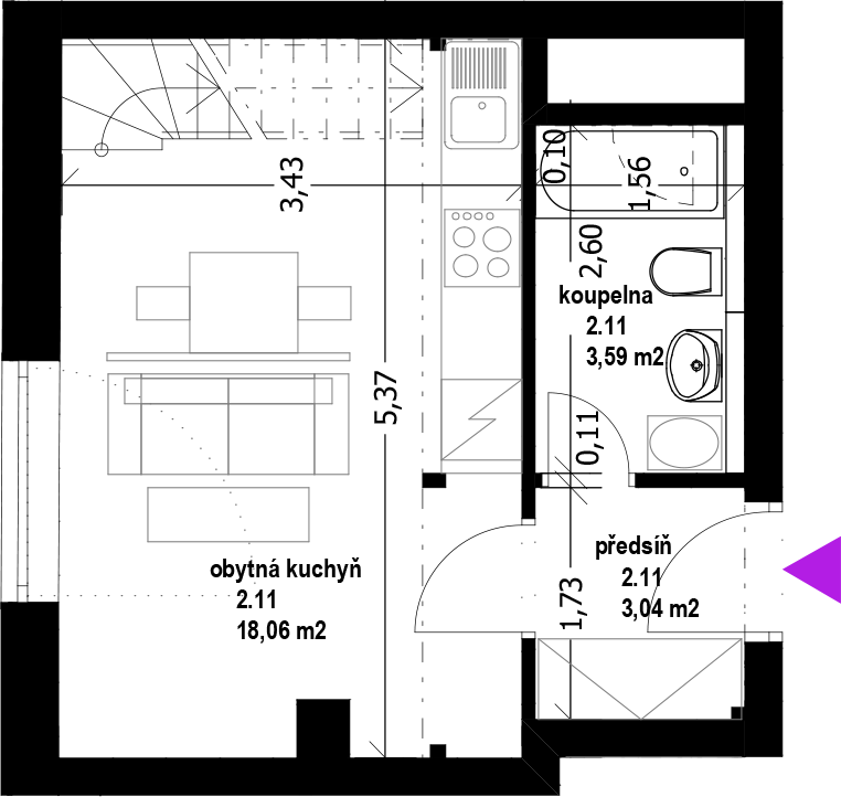
Byt 2.11 - 1+kk 2
Umístění:
2. nadzemní podlaží
typ bytu:
1+kk loft
orientace:
západ
plocha bytu:
24,69 m
2
galerie:
11,19 m
2
balkon:
-
terasa:
-
garážové stání:
-
sklep:
-
Pohled 1
No images were found.