Úvod
Lokalita
O projektu
Byty
Obchodní prostory
Video a fotogalerie
Kontakty
Úvod
Lokalita
O projektu
Byty
Obchodní prostory
Video a fotogalerie
Kontakty
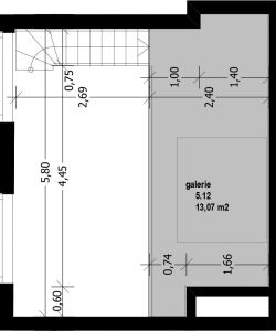
Byt 5.12 - 1+kk
Umístění:
5. nadzemní podlaží
typ bytu:
1+kk loft
orientace:
západ
plocha bytu:
28,45 m
2
galerie:
13,07 m
2
balkon:
-
terasa:
-
garážové stání:
-
sklep:
-
Pohled 1
No images were found.