Úvod
Lokalita
O projektu
Byty
Obchodní prostory
Video a fotogalerie
Kontakty
Úvod
Lokalita
O projektu
Byty
Obchodní prostory
Video a fotogalerie
Kontakty
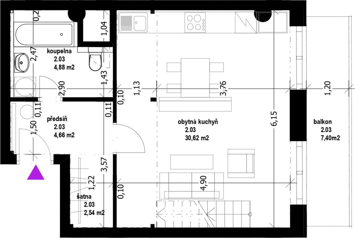
Byt 5.22 - 1+kk
Umístění:
2. nadzemní podlaží
typ bytu:
1+kk loft
orientace:
východ
plocha bytu:
42,70 m
2
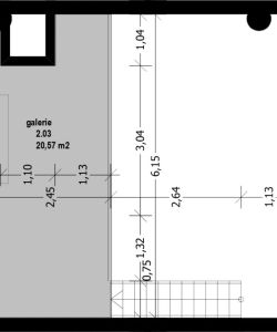
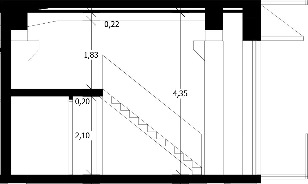
galerie:
20,57 m
2
balkon:
7,40 m
2
terasa:
-
garážové stání:
-
sklep:
-
Ilustrační obrázek
No images were found.