Úvod
Lokalita
O projektu
Byty
Obchodní prostory
Video a fotogalerie
Kontakty
Úvod
Lokalita
O projektu
Byty
Obchodní prostory
Video a fotogalerie
Kontakty
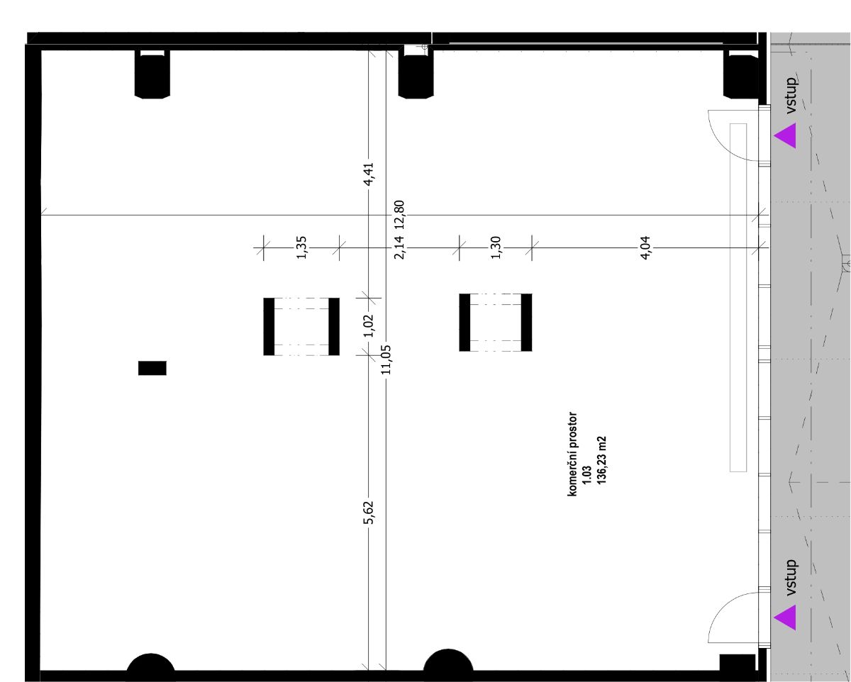
Komerční prostor 1.03
Umístění:
1. nadzemní podlaží
typ nemovitosti:
komerční prostor
orientace:
východ
plocha:
136,23 m
2
terasa:
-
garážové stání:
volitelně
sklep:
-
Pohled 1
No images were found.